マンション
この物件は128人の方が見ています
ビブレマンション久留米
1,300万円
南向き
4LDK以上
南面バルコニー
上下水道完備
角部屋
西鉄花畑駅徒歩約4分の好立地!周辺には商業施設や医療機関が揃い、生活のしやすい環境です。現況渡しのため、リフォームやリノベーションで自分好みの空間づくりを楽しめます。駅近で快適に暮らしたい方におすすめ。
ペットについて
→抱きかかえられるサイズの小型犬・猫を1匹まで飼育可能です。
写真はハウスクリーニング前のものとなります。ハウスクリーニングは売主様にて現在発注中となります。
物件概要
| 所在地 | 久留米市西町 | 価格 | 1,300 万円 |
|---|---|---|---|
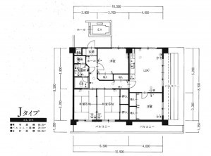
| 間取り | 4LDK | 築年数 | 1988年(昭和63)6 月 |
| 交通 |
西鉄天神大牟田線 花畑駅 まで 徒歩4分 西鉄天神大牟田線 西鉄久留米駅 まで 徒歩9分 |
専有面積 | 壁芯 89.25㎡ |
| 小学校区 | 金丸 (550m) | 中学校区 | 諏訪 (600m) |
| 地目 | 宅地 | 土地権利 | 所有権 |
| 都市計画 | 市街化区域 | 用途地域 | |
| 建ぺい率 | 80% | 容積率 | 400% |
| 上水道 | 公共 | 下水道 | 公共 |
| ガス | 都市ガス | 構造 | SRC(鉄骨鉄筋コンクリート) |
| 駐車場 | 空無 | 駐車場 | 6000円/月 |
| 管理方式 | 管理人日勤 | 管理会社 | 東京建物アメニティサポート |
| 管理費 | 13390円 | 修繕積立費 | 11070円 |
| 階数 | 10階 | 所在階 | 8階 |
| 総戸数 | 40戸 | バルコニー |
(南東側)
(南西側) |
| 取引態様 | 仲介 | 明渡 | 即時 |
| 設備・条件 | 側溝、モニタ付インターホン、オートロック、ペット可、角部屋、エレベーター | ||
| 備考 | |||
弊社では、売主様に配慮し、物件所在地を掲載していない物件がございます。
詳細については、お気軽にお問合せください。
(物件番号: 5001410)
【更新年月日】2025年11月07日 【次回更新日】2025年12月07日


